
AI建築設計ドローとは
AI建築設計ドロー(AI CAD)は、AI+CAD統合プラットフォームに特化した最先端のソリューションです。AEC(建築・エンジニアリング・建設)およびMFG(製造業)におけるデザインプロセスを革新し、設計チームの生産性を向上させる包括的なAIデザインソリューションを提供します。独自開発のAlphaDrawシステムは、業界標準、規制要件、エンジニアリングのベストプラクティスを学習し、強力な設計生成アルゴリズムを構築することで、設計効率を10倍向上させると同時に、クラウドベースの協業設計をサポートします。
📊 建築設計AIの価格をご覧になりたい方へ
- 標準料金プランをご案内いたします。(ご利用規模や用途に応じて異なります)
- 初期導入サポートもご相談いただけます
- 詳細な料金体系をご希望の方には、AI建築設計ドロー価格ページをご案内しています
- フォームにご登録いただいた企業様に、URLをメールで個別送付いたします
テクノロジー基盤
クラウドCAD、AI画像認識、AIデザインモデル、AIデザイン生成の4つの柱で構成されています。これらのテクノロジーをベースに、建築土木、エネルギー、高度製造業などの業界向けに包括的なAIデザインソリューションを提供します。

AI CADプラットフォーム = 設計大規模モデル + 専門AIモデル群 + クラウドネイティブCAD
- 設計大規模モデル: 初期段階のコンサルティングシナリオに対応し、要件を理解、タスクを分解、成果を統合することで、設計サービスコストを大幅に削減
- AI画像認識エンジン: 多分野、多カテゴリ、多形式の図面/テキスト/表の高精度自動認識と分析
- 生成的AI設計エンジン: パフォーマンス評価に基づくアルゴリズム設計で、科学的かつ客観的な設計ソリューション展開を実現
- クラウドCAD: データの完全性を確保し、AIの能力を継続的に向上させるクラウドプラットフォーム

導入効果
AI建築設計ドロー(AI CAD)の導入により、以下の効果が期待できます:
- 設計時間の70%削減: AIのサポートによる効率化
- エラー率50%低減: AI支援による設計品質の向上
- 年間10,000+のプロジェクト協業: プラットフォーム上での効率的な協業
- 設計プロセス効率5倍向上: AIサポートによる業務改善

適用領域
AI建築設計ドローは以下の領域で活用できます:

- 民間建築:住宅、オフィス、商業施設など
- 産業建築:工場、倉庫など
- インテリアデザイン
- 道路工事
- 鉄道交通システム
- 都市設計・計画
- 消防エンジニアリング
- 空調換気システム
- 送電工事
- 原子力発電
- 太陽光発電
- 風力発電
- 精製・化学プラント
- 石油工事
- 環境保護エンジニアリング
- 船舶エンジニアリング
- 航空宇宙エンジニアリング
- 航空工学
- 自動車工学
導入事例
集合住宅:AI駆動による超高効率化事例
ホテルチェーン:AIデザインプラットフォーム
ホテルブランドと元の平面図を入力すると、プラットフォームはAI画像認識とブランド要件に基づいて機能エリアを分析し、部屋の自動配置を行います。これにより、ブランド標準に準拠した建築平面図と工事数量表を迅速に生成し、設計効率を大幅に向上させ、設計サイクルを短縮します。

導入効果:
- 設計効率の大幅な向上:AIプラットフォームを通じた自動配置により、1プロジェクトあたりの設計時間が4時間から1時間に短縮され、効率が約75%向上
- 設計品質の標準化:プラットフォームには各ホテルブランドの設計基準が組み込まれており、AI生成の配置結果がチェーンブランド基準を満たすことを保証
- ビジネス対応速度の向上:AIプラットフォームにより、クライアントとの打ち合わせ中に設計モデルと工事数量表を迅速に生成し、コミュニケーション効率と対応速度を向上
産業施設:データセンターインテリジェント設計

世界トップクラスのデータセンターサービスプロバイダーと協力し、世界中で急速に拡大するデータセンター事業のための設計支援システムを開発。初期段階の設計、計算、成果物の提供を迅速に支援し、グローバルなビジネス展開を促進します。
オンライン多分野協業、多地域標準対応、シナリオ別AIモジュールがプラットフォーム上で実現されています。
設備デザイン:空調システムのインテリジェント設計と性能評価
大手空調企業と協力し、国内で急速に成長している家庭用セントラルエアコン事業のための設計支援システムを開発。早期段階での設計、計算、成果物の提供を迅速に支援し、ビジネスチームが潜在的なクライアントとのコミュニケーションを効率化します。

企業専用コンポーネントライブラリ、マルチディシプリンオンライン協業、マルチリージョン標準対応、AIモジュール、オンラインシミュレーションがプラットフォーム上で実現されています。
給排水設備:インテリジェント詳細設計と数量算出
世界トップクラスの給排水設備メーカーと協力し、トイレの同一階層排水のパイプラインと配管部品を自動配置し、排水図、システム図、工事数量表を生成し、企業製品SKUに準拠した3Dデザインモデルを構築します。

導入効果:
- インテリジェント詳細設計:AIの自動画像認識と配置機能により、パイプラインを自動レイアウトし、配管部品の位置と接続方法を最適化し、3Dモデル、詳細設計図、工事数量表を出力
- コストと効率の改善:AI設計により、設計チームはパイプラインと配管部品の手動計画の煩雑なプロセスを省き、企業標準要件を満たしながら設計品質を一貫して維持
- 対応速度と競争力の向上:手動による図面作成と比較して、現場での対応速度が大幅に向上し、プロジェクトにおける製品の競争力が向上
設備・建材の活用事例:サポート金具(支吊架)AI積算プラットフォーム
世界的に有名なアンカー製品メーカーと連携し、AI画像認識技術を組み込んだAutoCAD対応のAI積算プラグインを開発。技術部門の積算作業におけるスピードと精度を飛躍的に向上させました。

図面連動型確認:
CAD画面上で図面とリストを連動して確認・編集でき、リストと実際の図面内容の一致を確実に担保。
AI自動認識:
図面内のさまざまな部材をAIが自動的に識別し、一括でカウント。
ワンクリック集計:
AIによる認識結果を技術者が確認し、確認後はワンクリックで積算リストとして出力可能。
建築設計:住宅インテリジェント設計プラットフォーム
住宅建築の平面プランに特化したインテリジェント設計プラットフォームを開発。AI画像認識による自動テンプレートライブラリで知識を蓄積し、家具コンポーネントをAIで迅速に生成。空間のカラーリングスキームと自動注釈を生成し、モデルと全専門図面を迅速に出力します。

さらに、多分野協業において、電気・機械の専門要件を考慮したコアモジュールの生成を実現。リアルタイムで各空間の面積統計を確認し、電子申請関連指標の自動チェックを提供します。
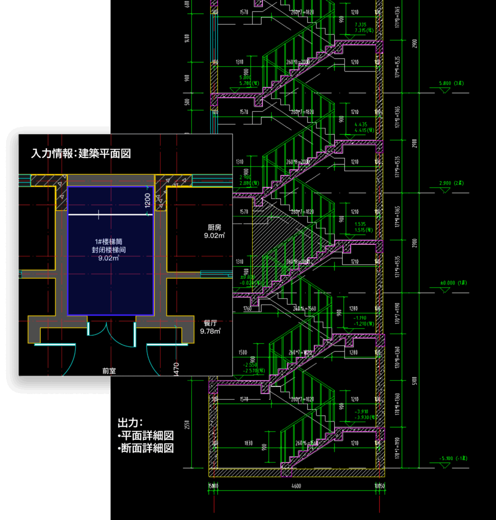
階段設計:AI階段アシスタント
AI技術により階段スペースの位置、寸法、壁と開口部の配置、階高情報を検出し、高度なアルゴリズムを使用して階段の配置を自動計算します。避難経路の衝突やヘッドルーム制約を確認し、ユーザーに修正を促し、階段詳細図面を迅速に作成します。

導入効果:
- 時間の約90%削減
- 階段自動配置100%実現
- 主要な建築設計企業での導入実績多数
都市計画:【事例】広州駅都市再開発デジタルプラットフォーム
広州駅エリアの都市再開発では、地域の現存建築、都市設計プラン、用地取得(立ち退き)状況など、多様かつ時系列の異なるデータを総合的に管理する必要があります。

本プラットフォームでは、AI技術を活用して、用地取得の進捗や都市計画の実現状況といった多角的な指標をインテリジェントにモニタリングし、都市更新プロジェクトの高品質な推進を支援します。
都市再開発を支えるスマートAIプラットフォーム
AI建築設計ドロー × 人流シミュレーション
「AI建築設計ドロー」は、都市再開発のすべてのプロセスを統合的に支援するスマート管理プラットフォームです。設計案の立案から進捗追跡、再開発ユニットの管理、土地譲渡や建設の進捗まで、AIと3D技術による高度な支援機能を提供しています。
特に注目すべきは、AIによる人流シミュレーション機能です。実際の人口データと建物・道路などの都市構造をもとに、人々の移動パターンをリアルに再現・予測。これにより、再開発エリアにおける利便性や安全性、商業動線の最適化を事前に検証できるようになります。
主な特徴:
- リアルタイム追跡と精緻な管理:ドローン測量や空間データベースと連携し、状況変化を即座に可視化。
- 2D/3D連動によるシームレスな都市設計:設計案の検証やバーチャルツアーによる住民理解の促進。
- AIシミュレーションによる最適化:用途地域規制・ゾーニング・人流予測などをAIが自動分析。
- マルチデバイス対応:PC・スマートフォンなど複数端末で同時にデータ閲覧・操作が可能。
都市再開発における複雑な意思決定を、AIとテクノロジーの力で「見える化」し、より合理的かつ市民に寄り添った都市づくりを実現します。
設計審査:住宅AI図面品質管理プラットフォーム
大手不動産企業と協力して開発したAI図面チェックプラットフォームは、70項目の設計基準を自動的に検証し、2022年度の主要技術賞を受賞しました。

導入効果:
- 審査効率の向上:AI図面チェックは審査効率を大幅に向上させ、住宅プロジェクトに対して図面1枚あたりの審査時間を2分に短縮し、全体の審査速度は手動審査の9倍を達成
- 見落とし率の低減:AIは機械学習とディープラーニング技術を通じて図面情報をより正確に解析・判断し、同バッチの図面において、AI図面チェックが発見する問題数は手動審査の5〜10倍で、見落としを大幅に削減
- 設計変更の削減:設計問題を早期に検出することで、2020年と2021年の2年間だけでAI審査によって発見された問題が企業の数億円の経済的損失を回避
エネルギー関連:送電インテリジェント設計プラットフォーム
地域の送電システムのルート選定、インテリジェントタワーと電気ウェルの配置などのアプリケーションシナリオに対応し、初期段階から概念設計段階までの設計、計算、成果物の提供を迅速に支援するシステムを開発。ビジネスチームの品質と効率を向上させます。

オンライン協業、地域標準対応、コスト連携がプラットフォーム上で実現されています。
電力工学:洋上風力発電所AIパイプ統合プラットフォーム
新エネルギー分野の大手企業と協力し、AI設計システムを使用して海上変電所のインテリジェント設計と、より多くの陸上変電所などの昇圧シナリオを完成させました。

このシナリオでは、AI画像認識、AIモデリング、AI設計、および包括的な最適化機能を活用して、パイプ統合設計プロセスを強化し、3Dモデルの手動作成と繰り返し修正にかかる時間と労力を削減する課題を解決しています。
エネルギー・化学業界向け事例:AIによる電線ケーブルの3D配線設計・自動生成

設備や配管などの元データモデルと電気設計要件を読み込み、AIが最適なケーブルルートを自動探索・最適化。生成されたケーブル配線モデルは統合モデルに自動で組み込まれ、設計の効率と精度を大幅に向上させます。
エネルギー・化学業界向け事例:PID配管自動設計ソリューション
AI技術を活用し、石油化学プラントのPID図面と3Dモデルを解析。空間を有効に活用しながら、複雑な配管設計を自動で実行します。AIシミュレーションとAIプロセスパッケージを統合し、化学プロセスや保守・運用要件に準拠した高品質な配管設計を実現。設計効率と品質を大幅に向上させます。

🔧 機能の特徴:
- 空間と部材の一体最適化: 改修・施工時の限界空間を事前に確保
- 配管と支持架台の一体設計: 支持架台と配管ルートを同時に考慮し最適化
- 実体モデルと構造計算の統合: 応力の影響を考慮したルート・架台配置設計
航海・船舶事例:内装・機電一体化AI設計ソリューション
AIを活用した本ソリューションは、複雑な船舶内の内装および機電設計を一体化し、設計精度の向上・工期短縮・空間効率の最大化を実現します。

✅ 機電システムの自動設計
船舶設計の要件に基づき、電力・動力・配線・配電盤などを含む機電システム全体をAIが自動でレイアウト。
関連部材の接続まで一括して自動生成され、設計の効率化と品質の安定化に貢献します。
✅ モジュール別自動配管アシスタント
船体構造に応じて、グレー水管、消火システムなどの配管をAIが自動で配置。
船内の配置要件に合致するよう、設計基準に準拠した最適なレイアウトを実現します。
✅ システム間の自動最適調整
船のタイプや機能に応じて、複数の機電システムをAIが自動的に調整。
システム間の整合性を保ちながら、限られた空間を最大限に活用できるレイアウトを提案します。
✅ サブシステムの高速シミュレーション
設計段階から各システムの稼働状況・性能をリアルタイムに可視化。
相互干渉や潜在的な設計リスクを事前に検出し、設計の信頼性と安定性を高めます。
高度製造業:船舶ケーブル一覧インテリジェント生成システム
CAD図面をアップロードするだけで、AIが船舶用電気設計図(系統図)を自動で解析し、電線リスト(ケーブルリスト)を自動作成。

複雑で時間のかかる設計業務を大幅に効率化し、電気室の専門設計者の作業負担を軽減。設計精度と正確性を飛躍的に向上させます。
自動車工学:自動車照明ハーネス構造図の自動生成
CADモデルデータを自動解析し、インテリジェントな注釈付けとレイアウトを行い、詳細図面を自動出力するシステムを開発。CATPart形式の入力からCATDrawing形式の出力までを自動化し、設計効率を大幅に向上させています。
AIによるCATIA図面自動生成プロセス
CATPart形式の3Dモデルから、AIが図面レイアウト・注釈・解析までを自動実行し、CATDrawingとして出力。
設計者の負担を軽減し、作図業務のスピードと精度を大幅に向上させます。

【1】モデル形式(CATPart)
3D設計モデル(CATPart)を準備。
【2】データ読み取り
パーツ情報・属性情報などの基本データをAIが取得:
- 対象の取得
- パーツの取得
- 属性情報の取得
【3】AIによる図面自動生成
AIが図面情報を自動的に解析・生成:
- インテリジェント解析
- 自動注釈追加
- レイアウト配置の最適化
【4】図面データへの書き込み
生成した図面情報をCAD環境に自動反映:
- 投影図ビューの作成
- 注釈の自動追加
- 図枠の作成
【5】図面ファイル出力(CATDrawing)
最終成果物として、CATDrawing形式の図面が自動出力されます。
AI建築設計ドロー 提携パートナー募集
当社では、AIによる建築設計支援ツール「AI建築設計ドロー」の販売・拡販にご協力いただける提携パートナーを募集しております。 建築・設計・施工分野での知見をお持ちの企業様、またはCAD・建築関連サービスをご提供中の皆様との連携を強く希望しています。
■ 提携形態の例
- 販売代理契約(紹介手数料あり)
- 業務提携(共同セミナー開催・共同販売)
- OEM提供(貴社ブランドでの展開)
- 新たな収益源: 革新的なAIツールを顧客に提供することで、新たな収益機会を創出
- 競争優位性: 最先端テクノロジーを活用した差別化要素の獲得
- 顧客満足度向上: クライアントの設計プロセスを効率化し、満足度を高める
- 技術的サポート: 当社からの充実した技術サポートとトレーニング
- 共同マーケティング: 販促活動における協力体制
以下のような企業・団体からのお問い合わせを特に歓迎いたします:
- 建築CAD/BIMソフトウェア企業
- 建設会社・ゼネコン
- 住宅メーカー・ハウスメーカー
- 建築設計事務所
- 建材・住宅設備メーカー
- 建設業向けDXソリューション企業
- 不動産デベロッパー
- 建築教育機関
- インテリアデザイン企業
- 建設プロジェクト管理ツール提供企業
- 販売代理店: 当社製品の販売・導入支援
- 技術統合: 既存システムとの連携・統合
- 共同開発: 業界特化機能の共同開発
- 教育パートナー: トレーニングプログラムの提供
ご希望の提携形態や貴社の業種・サービス内容を記載のうえ、ぜひお気軽にご連絡ください。
▶ 提携のお問い合わせはこちら建設・製造業向けAI導入支援:企画提案から現場実装までをワンストップで
- AI配置計画
- AI概算・予測
- AI配線ルート選定
- AIレイアウト設計
- AIフィージビリティ分析
- AIコンセプト図作成
- AIゾーニング
- AIルーム配置
- AI配線・配管設計
- AI統合設計
- AIシミュレーション
- AI整合性チェック
- AIドキュメント整理
- AI自動審査
- AIモデル精査
- 図表整合チェック
- モデル・図面一貫性確認
- AI空調・排水設計深化
- AI電気設備設計深化
- 弱電・スマートシステム化
- AIシステム図生成
- AI設備仕様書作成
- AI工程数量算出
- AI積算支援
- AIモデリング
- AIシミュレーション
- エネルギー統計分析
- 運用最適化AI
標準料金プラン
📊 建築設計AIの価格をご覧になりたい方へ
- 標準料金プランをご案内いたします。(ご利用規模や用途に応じて異なります)
- 初期導入サポートもご相談いただけます
- 詳細な料金体系をご希望の方には、AI建築設計ドロー価格ページをご案内しています
- フォームにご登録いただいた企業様に、URLをメールで個別送付いたします
サービス提供モデル
AI建築設計ドロー
AI駆動の建築設計支援ツール。設計業務の効率化と品質向上を実現します。
革新的な機能
AI階段設計
AIが自動的に最適な階段設計を提案。複雑な計算や規制対応も自動化し、設計時間を大幅に短縮します。
プラットフォーム連携
既存の設計ツールやBIMソフトウェアとシームレスに連携。ワークフローを乱すことなく導入できます。
カスタマイズ可能
企業のニーズに合わせた柔軟なカスタマイズが可能。特定の業務フローや設計基準に合わせて最適化できます。
詳細な技術サポート
導入から運用まで、専門家による手厚いサポート体制。問題発生時も迅速に対応します。
定期的なアップデート
最新のAI技術を取り入れた定期アップデートにより、常に最先端の機能をご利用いただけます。
日本市場対応
日本の建築基準法や設計慣行に完全対応。現地での対面サポートも可能です。
柔軟な導入オプション
お客様のIT環境やセキュリティ要件に合わせて、最適な導入形態をお選びいただけます。
関連製品
🚀 n’Space|BIM/CADを実寸1:1で体験
「そこにないのに、そこにある」、図面では伝わらない“空間の実感”をそのまま再現。
体験できる裸眼3D空間「n’Space」をご紹介します。
